U8¹ú¼Ê¡¤(Öйú)ÓÐÏÞ¹«Ë¾¹ÙÍø

ºáÇÙ¿Ú°¶¹ý¶ÉÆÚͨ¹ØÉèÊ©³ö¾³±¨¹Ø±¨¼ìÂ¥Èý²ãд×Ö¼ä×âÁÞ¾º¼ÛÔ¼Ç뺯
½ÒÏþʱ¼ä£º2015-01-27
·ÖÏíµ½£º

ºáÇÙ¿Ú°¶¹ý¶ÉÆÚͨ¹ØÉèÊ©

³ö¾³±¨¹Ø±¨¼ìÂ¥Èý²ãд×Ö¼ä×âÁÞ¾º¼ÛÔ¼Ç뺯

 

   Ϊлл¹ó˾¶ÔºáÇÙ¿Ú°¶ºã¾ÃÒÔÀ´µÄÐÅÍкÍÖ§³Ö£¬£¬£¬£¬£¬£¬£¬×ȶ¨ÓÚ2015Äê2ÔÂ10ÈÕ£¨ÐÇÆÚ¶þ£©ÏÂÖç2ʱ00·ÖÔÚÎÒ˾__µÚ¶þ__¾Û»áÊÒ¾ÙÐкáÇÙ¿Ú°¶¹ý¶ÉÆÚͨ¹ØÉèÊ©³ö¾³±¨¹Ø±¨¼ìÂ¥Èý²ãд×Ö¼ä×âÁÞ¾º¼Û£¬£¬£¬£¬£¬£¬£¬ÈȳÀÆÚ´ýÄúµÄ¼ÓÈëºÍ¾º¼Û¡£¡£¡£¡£¡£ÏêϸÄÚÈÝÈçÏ£º

Ò»¡¢ÏîÄ¿Ãû³Æ£ººáÇÙ¿Ú°¶¹ý¶ÉÆÚͨ¹ØÉèÊ©³ö¾³±¨¹Ø±¨¼ìÂ¥Èý²ãд×Ö¼ä×âÁÞ¾º¼Û

¶þ¡¢ÏîÄ¿ËùÔÚ£ºU8¹ú¼Ê¡¤(Öйú)ÓÐÏÞ¹«Ë¾¹ÙÍø¿Ú°¶½¨É迪·¢ÓÐÏÞ¹«Ë¾___µÚ¶þ___¾Û»áÊÒ

Èý¡¢ÏîÄ¿ÄÚÈÝ£º±¾´ÎÕÐ×âµÄºáÇÙ¿Ú°¶¹ý¶ÉÆÚÉèÊ©ÄÚд×Ö¼äλÓÚ³ö¾³±¨¹Ø±¨¼ìÂ¥ÈýÂ¥£¬£¬£¬£¬£¬£¬£¬¹²ÓÐ10¼äд×ּ䣬£¬£¬£¬£¬£¬£¬Ïê¼û¸½¼þ£¨Èý£©¡£¡£¡£¡£¡£Ð´×ּ佻¸¶ÇéÐÎΪ¼ò×°ÐÞ½»¸¶£¬£¬£¬£¬£¬£¬£¬ÆäÖаüÀ¨£ºÇ½Éí¡¢µØ°å¡¢Ì컨¼°µç·µÈ¡£¡£¡£¡£¡£ÎÒ˾ÏÖÄâ¶Ôд×Ö¼äµÄÈýÄê×âÁÞȨ¾ÙÐйûÕæ¾º¼Û£¬£¬£¬£¬£¬£¬£¬Ð´×Ö¼äÖ»ÔÊÐíı»®±¨¹Ø±¨¼ìÀàµÄÏà¹ØÐÐÒµ£¬£¬£¬£¬£¬£¬£¬²¢Ð뽫ı»®×ÊÖʱ¨ËÍÖ麣U8¹ú¼Ê¡¤(Öйú)ÓÐÏÞ¹«Ë¾¹ÙÍø¿Ú°¶½¨É迪·¢ÓÐÏÞ¹«Ë¾Ô޳ɼ°±¸°¸¡£¡£¡£¡£¡£

ËÄ¡¢¾º¼ÛÎļþ×é³É£º

1£®±¨¼ÛÊéÒªÇó¼°ÊýÄ¿£ºÖÐÎÄ£¬£¬£¬£¬£¬£¬£¬Õý±¾Ò»·Ý£¬£¬£¬£¬£¬£¬£¬¸±±¾¶þ·Ý£¬£¬£¬£¬£¬£¬£¬Õý±¾¸±±¾¾ùÐë¼Ó¸Ç¹«Õ£»£»£» £»£»£»£»±¨¼ÛÊéÃûÌÃÏê¼û¸½¼þ£¨Ò»£©¡£¡£¡£¡£¡£ËùÓоº¼ÛÎļþµÝ³öºó²»ÓèÍË»¹¡£¡£¡£¡£¡£

2£®¾º¼ÛÆóÒµÏà¹ØµÄ×ʸñÖ¤Ê飺°üÀ¨ÓÐÓõġ°·¨ÈËÓªÒµÖ´ÕÕ¡±¸±±¾ÄÚÒ³£¨Ìṩ¸´Ó¡¼þ²¢¼Ó¸Ç¹«Õ£¬£¬£¬£¬£¬£¬£¬ÄÚÈÝÓ¦º¬ÆóÒµ·¨ÈËÄê¼ìÇéÐμͼºÍı»®¹æÄ£²¢¼Ó¸Ç¹«Õ£©¡¢Ë°Îñ¹ÒºÅÖ¤£¨Ìṩ¸´Ó¡¼þ²¢¼Ó¸Ç¹«Õ£©¡¢×éÖ¯»ú¹¹´úÂëÖ¤£¨ÆäÖÐÔöֵ˰һÑùƽ³£ÄÉ˰ÈË×ʸñÖ¤ÊéµÈ×ÊÁÏÆ¾Ö¤Ïêϸ¾º¼ÛÏîÄ¿ÄÚÈÝÌṩ£¬£¬£¬£¬£¬£¬£¬Ìṩ¸´Ó¡¼þ²¢¼Ó¸Ç¹«Õ£©ÒÔ¼°ÓÐÓõı¨¹ØÓªÒµÔÊÐíÖ¤»òÏà¹ØÎļþ£¨Ìṩ¸´Ó¡¼þ²¢¼Ó¸Ç¹«Õ£©µÈ¡£¡£¡£¡£¡£

3£®¾º¼ÛÆóÒµ¼ò½é¡£¡£¡£¡£¡£

4£®·¨ÈËÊÚȨ´ú±íÉí·ÝÖ¤£¨¸´Ó¡¼þ²¢¼Ó¸Ç¹«Õ£©ºÍ·¨ÈËÊÚȨίÍÐÊé¡£¡£¡£¡£¡£

5£®ÒÔÉÏ֤ʵÎļþ¾ùÐè¼Ó¸Çµ¥Î»¹«Õ£¬£¬£¬£¬£¬£¬£¬ËùÓоº¼ÛÎļþÐèÓÃÐÅ·â×°ºÃÃÜ·â²¢ÔÚ·â¿Ú´¦¼Ó¸Ç¹«Õ¡£¡£¡£¡£¡£ÒÔÉÏ×ÊÁϵݽ»ºó²»ÓèÍË»¹¡£¡£¡£¡£¡£

Îå¡¢¾º¼ÛÊéµÄµÝ½»

ÇëÓÚ¾º±êÈÕǰÈýÌ콫³Ð×âÈ˵ľº¼ÛÊ飨ÐëÃÜ·â²¢¼Ó¸Ç¹«Ë¾¹«Õ£©Ìá½»µ½Ö麣U8¹ú¼Ê¡¤(Öйú)ÓÐÏÞ¹«Ë¾¹ÙÍø¿Ú°¶½¨É迪·¢ÓÐÏÞ¹«Ë¾1ºÅÂ¥Ò»²ã1101ÊÒ²ÜС½ã´¦µÝ½»¡£¡£¡£¡£¡£

³Ð×âÈËÐëÓÚ¾º±êÈÕ2015Äê2ÔÂ10ÈÕÏÂÖç2µãµÖ´ï¾º±êËùÔÚ£ºÖ麣U8¹ú¼Ê¡¤(Öйú)ÓÐÏÞ¹«Ë¾¹ÙÍø¿Ú°¶½¨É迪·¢ÓÐÏÞ¹«Ë¾¶þÂ¥µÚ¶þ¾Û»áÊÒ¼ÓÈëд×ּ侺Ͷ£¬£¬£¬£¬£¬£¬£¬Î´ÔÚµ±Ì컮׼ʱ¼äµÖ´ïµÄÒâÏò³Ð×âÈ˽«ÊÓΪ·ÅÆú¾º±ê¡£¡£¡£¡£¡£

È羺¼Û·½ÓÐÈκÎÒÉÎÊ£¬£¬£¬£¬£¬£¬£¬¿ÉÓë±¾ÏîÄ¿ÈÏÕæÈËʵʱÁªÏµ¡¢×Éѯ£º

ÁªÏµÈË£º²Ü¾§                

ÁªÏµµç»°£º0756-6313930£»£»£» £»£»£»£»18688162188

´«Õ棺0756-6313900                 

µØµã£ºÖ麣ÊкáÇÙÐÂÇø¾°Ë³Â·£¨ºáÇÙÐÂÇøÍýÏ뽨ÉèչʾÌüÅÔ£©

Áù¡¢¾º¼Û˵Ã÷£º

1£®ÓÉÓÚ×ÊÔ´ºÍ³¡ºÏÓÐÏÞ£¬£¬£¬£¬£¬£¬£¬±¾´Î¾º¼ÛÏîÄ¿¾ùÓɹ«Ë¾Ïà¹Ø²¿·ÖÖ°Ô±×é³É¾º¼ÛÆÀÉóС×飬£¬£¬£¬£¬£¬£¬¾ÙÐй«Õý¡¢¹«ÕýµÄÆÀÉ󣻣»£» £»£»£»£»²»É辺¼Û·½ÏÖ³¡½â´ð¾º¼ÛµÄÁ÷³Ì¡£¡£¡£¡£¡£

2£®Îª¹«Õý¾ºÕù£¬£¬£¬£¬£¬£¬£¬ÎÒÃÇͬʱÒÔͬÑùÌõ¼þÔ¼ÇëÆäËû¹«Ë¾¶ÔÎÒ·½×ö³ö±¨¼Û¡£¡£¡£¡£¡£

3£®Ð´×Ö¼äÓÃ;½öÏÞÓÚ±¨¹Ø±¨¼ìÀàµÄÕýµ±Ä±»®¡£¡£¡£¡£¡£

4£®¾º¼Û¼ÛǮֻº¬»ù±¾×â½ð£¬£¬£¬£¬£¬£¬£¬²»º¬Ë®µç¼°ÎïÒµÖÎÀíµÈÆäËûÏà¹ØÓöȡ£¡£¡£¡£¡£

5£®ÎÒ·½Ö»Ë¼Á¿ÓëËù¸½±¨¼ÛÒªÇóÏà·ûµÄ±¨¼ÛÊ飬£¬£¬£¬£¬£¬£¬Ïê¼û¸½¼þ£¨Ò»£©¡£¡£¡£¡£¡£

6£®ÎÒÃÇÓÐȨ½ÓÄɱ¨¼ÛµÄËùÓлòÒ»²¿·Ö¡£¡£¡£¡£¡£Èô¹ó·½±¨¼Û×îÖÕΪÎÒ·½Ëù½ÓÊܲ¢Ç©ÊðÌõÔ¼£¬£¬£¬£¬£¬£¬£¬¹ó·½½«¼ç¸ºÌõÔ¼ÏîÏÂÒÒ·½Ëù¼ç¸ºµÄËùÓÐÔðÈκÍÒåÎñ¡£¡£¡£¡£¡£±¾´Î¾ÙÐоº±êµÄд×ּ侺ÅÄÆðÅļÛΪ350Ôª/ƽ·½Ã×£¨ÐÞ½¨Ãæ»ý£©/ÔÂÆð£¬£¬£¬£¬£¬£¬£¬ÈôËùÓмÓÈ뾺±êµÄµ¥Î»µÄ±¨¼ÛδÄܸßÓڴ˼ۣ¬£¬£¬£¬£¬£¬£¬Ôò´Ë±êÁ÷ÅÄ¡£¡£¡£¡£¡£

7£®¾º¼ÛÊé×ÊÁÏÓ¦ÍêÕû¡¢ÇåÎú£¬£¬£¬£¬£¬£¬£¬¶ÔÓÉÓÚ¾º¼ÛÈËÉè¼ÆÒÅ©»òÉè¼Æ¹ýʧ¶øÔì³ÉµÄÐèÒªÔö²¹Í¶×ʵÄÓöȣ¬£¬£¬£¬£¬£¬£¬Óɾº¼ÛÈË×ÔÐм縺¡£¡£¡£¡£¡£    

8£®¼ÛÇ®ÊÇÎÒÃÇÑ¡Ôñ×îÖÕÏàÖúµ¥Î»Ë¼Á¿µÄÖ÷ÒªÒòËØ£¬£¬£¬£¬£¬£¬£¬µ«²¢²»ÊÇΨһÒòËØ¡£¡£¡£¡£¡£

9£®±¾º²ÔýÖ»ÊÇÔ¼Ç뱨¼Û£¬£¬£¬£¬£¬£¬£¬ÎÒ˾ÎÞÒåÎñ¶ÔËùÓеݽ»µÄ±¨¼ÛÊé·¢³öÔÊÐí¡£¡£¡£¡£¡£ÎÒ˾ÓÐȨƾ֤ÏÖʵÐèÒªÓë¸÷±¨¼Û·½¾ÙÐмÛÇ®¸´Ò飬£¬£¬£¬£¬£¬£¬±»×îÖÕÑ¡ÔñµÄ¾º¼Û·½½«Æ¾Ö¤ÌõÔ¼·¨ÓëÎÒ˾¶©Á¢ÕýʽÌõÔ¼¡£¡£¡£¡£¡£

10£®±¾Ô¼Ç뺯µÄÚ¹ÊÍȨÔÚÖ麣U8¹ú¼Ê¡¤(Öйú)ÓÐÏÞ¹«Ë¾¹ÙÍø¿Ú°¶½¨É迪·¢ÓÐÏÞ¹«Ë¾¡£¡£¡£¡£¡£

11£®±¾Ô¼Ç뺯ÒÔ´«Õæ¼þ»òµç×ÓÓʼþµÄÐÎʽ·¢³ö£¬£¬£¬£¬£¬£¬£¬ÊÕµ½ºóÇëʵʱÊéÃæ´«ÕæÈ·ÈϸøÎÒ¹«Ë¾¡£¡£¡£¡£¡£

˳ËÌÉÌì÷£¡

 

 

Ö麣U8¹ú¼Ê¡¤(Öйú)ÓÐÏÞ¹«Ë¾¹ÙÍø¿Ú°¶½¨É迪·¢ÓÐÏÞ¹«Ë¾

2015Äê1ÔÂ27ÈÕ

 


¸½¼þ£¨Ò»£©£º

 

ºáÇÙ¿Ú°¶¹ý¶ÉÆÚͨ¹ØÉèÊ©

³ö¾³±¨¹Ø±¨¼ìÂ¥Èý²ãд×Ö¼ä×âÁÞ¾º¼Û±¨¼Û±í

 

¾º±êд×ּ䣺

д×Ö¼äλÓÚ³ö¾³±¨¹Ø±¨¼ìÂ¥ÈýÂ¥£¬£¬£¬£¬£¬£¬£¬¹²ÓÐ10¼äд×Ö¼ä³ö×⣨Ïê¼û¸½¼þ£¨¶þ£©£©¡£¡£¡£¡£¡£

´Ë´Î¾ºÍ¶µÄд×Ö¼äΪµÚ        ºÅ¡£¡£¡£¡£¡£

¾º±êµ¥Î»£º

 

ÁªÏµÈË£º

 

ÁªÏµ·½·¨£º

 

¾º±ê¼ÛÇ®£º

£¨ÃûÌãºXÔª/ƽ·½Ã×£¨ÐÞ½¨Ãæ»ý£©/Ô£©

 

¾º±êʱ¼ä£º

2015Äê2ÔÂ10ÈÕ

 

¸½¼þ£¨¶þ£©£º

ºáÇÙ¿Ú°¶¹ý¶ÉÆÚÉèÊ©³ö¾³±¨¹Ø±¨¼ìÂ¥½á¹¹Í¼


U8¹ú¼Ê(Öйú)ÓÐÏÞ¹«Ë¾¹ÙÍø

¸½¼þ£¨Èý£©£º

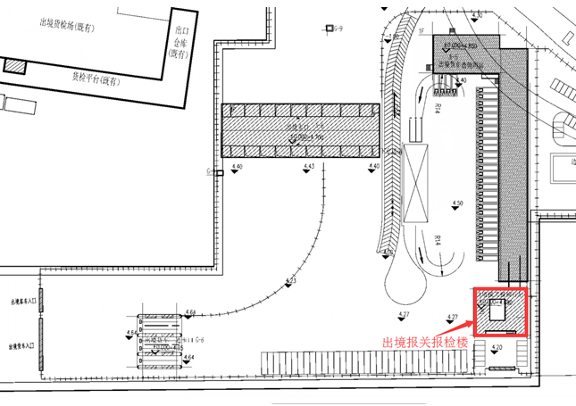
ºáÇÙ¿Ú°¶¹ý¶ÉÆÚͨ¹ØÉèÊ©ÏîÄ¿³ö¾³±¨¹Ø±¨¼ìÂ¥Èý²ãд×Ö¼äÆ½ÃæÍ¼£º

U8¹ú¼Ê(Öйú)ÓÐÏÞ¹«Ë¾¹ÙÍø


¸½¼þ£¨ËÄ£©£º

ºáÇÙ¿Ú°¶¹ý¶ÉÆÚͨ¹ØÉèÊ©³ö¾³±¨¹Ø±¨¼ìÂ¥3Â¥ÕÐ×âд×Ö¼äÐÞ½¨Ãæ»ý±í

 

ºáÇÙ¿Ú°¶¹ý¶ÉÆÚͨ¹ØÉèÊ©³ö¾³±¨¹Ø±¨¼ìÂ¥

ÈýÂ¥ÕÐ×âд×Ö¼äÐÞ½¨Ãæ»ý±í

 

Ãû³Æ

ÐòºÅ

·¿¼äºÅ

ÐÞ½¨Ãæ»ý£¨©O£©

ºáÇÙ¿Ú°¶¹ý¶ÉÆÚͨ¹ØÉèÊ©

³ö¾³±¨¹Ø±¨¼ìÂ¥

ÈýÂ¥ÕÐ×âд×Ö¼ä

1

A301

12.54

2

A302

12.14

3

A303

12.14

4

A304

12.14

5

A305

12.88

6

A308

10.54

7

A309

10.29

8

A310

10.29

9

A311

10.63

10

A312

59.19

 


¸½¼þ£¨Î壩£º

ºáÇÙ¿Ú°¶¹ý¶ÉÆÚͨ¹ØÉèÊ©ÏîÄ¿³ö¾³±¨¹Ø±¨¼ìÂ¥Èý²ãд×Ö¼ä×âÁÞÌõÔ¼£º

ÌõÔ¼±àºÅ£º

 

 

 

 

 

ºáÇÙ¿Ú°¶¹ý¶ÉÆÚͨ¹ØÉèÊ©

 

³ö¾³±¨¹Ø±¨¼ìÂ¥Èý²ãд×Ö¼ä

×âÁÞÌõÔ¼

 

 

 

 

 

 

¼×·½£¨³ö×â·½£©£ºÖ麣U8¹ú¼Ê¡¤(Öйú)ÓÐÏÞ¹«Ë¾¹ÙÍø¿Ú°¶½¨É迪·¢ÓÐÏÞ¹«Ë¾

ÒÒ·½£¨³Ð×â·½£©£º _____________________________


ºáÇÙ¿Ú°¶¹ý¶ÉÆÚͨ¹ØÉèÊ©

³ö¾³±¨¹Ø±¨¼ìÂ¥Èý²ãд×Ö¼ä×âÁÞÌõÔ¼

                                                                                            

¼×·½£¨³ö×â·½£©£ºÖ麣U8¹ú¼Ê¡¤(Öйú)ÓÐÏÞ¹«Ë¾¹ÙÍø¿Ú°¶½¨É迪·¢ÓÐÏÞ¹«Ë¾

·¨¶¨´ú±íÈË/ÈÏÕæÈË£º ÖìÖÒ¡

µØµã£ºÖ麣ÊкáÇÙÐÂÇø¾°Ë³Â·£¨ºáÇÙÐÂÇøÍýÏëչʾÌüÅÔ£©

 

ÒÒ·½£¨³Ð×â·½£©£º

·¨¶¨´ú±íÈË/ÈÏÕæÈË£º

µØµã£º

 

ƾ֤¡¶ÖлªÈËÃñ¹²ºÍ¹úÌõÔ¼·¨¡·ÒÔ¼°¹ú¼ÒÓйغâÓî×âÁÞ¹æÔòµÄ»®¶¨£¬£¬£¬£¬£¬£¬£¬Îª±£»£»£» £»£»£»£»¤×âÁÞË«·½µ±ÊÂÈ˵ÄÕýµ±È¨Ò棬£¬£¬£¬£¬£¬£¬Ã÷È·Ïà¹ØµÄȨÁ¦ÒåÎñ¹ØÏµ£¬£¬£¬£¬£¬£¬£¬¼×ÒÒË«·½¾­Ð­ÉÌÒ»Ö£¬£¬£¬£¬£¬£¬£¬Ç©Êð±¾ÌõÔ¼¡£¡£¡£¡£¡£

µÚÒ»Ìõ ºâÓîλÖü°Ãæ»ý¸Å¿ö

¼×·½Ô޳ɽ«Î»ÓÚÖ麣ÊкáÇÙÐÂÇø¾°Ë³Â·ºáÇÙ¿Ú°¶¹ý¶ÉÆÚͨ¹ØÉèÊ©³ö¾³±¨¹Ø±¨¼ìÂ¥µÄ  µÚÈý²ã    ºÅд×ּ䣨ÐÞ½¨Ãæ»ý    ©O£¬£¬£¬£¬£¬£¬£¬ÒÔϼò³Æ¡°×âÁÞ·¿²ú¡±£©£¬£¬£¬£¬£¬£¬£¬³ö×â¸øÒÒ·½Óг¥Ê¹Óᣡ£¡£¡£¡£ÒÒ·½³Ð×âµÄд×Ö¼äÖ»ÔÊÐíı»®±¨¹Ø±¨¼ìÀàµÄÏà¹ØÐÐÒµ£¬£¬£¬£¬£¬£¬£¬²¢Ð뽫ı»®×ÊÖʱ¨Ëͼ׷½Ô޳ɼ°±¸°¸¡£¡£¡£¡£¡£×âÁÞʱ´úÒÒ·½²»µÃ±ä»»Ä±»®¹æÄ£¼°·½·¨£¬£¬£¬£¬£¬£¬£¬²»È»ÊÓΪÒÒ·½Î¥Ô¼£¬£¬£¬£¬£¬£¬£¬¼×·½ÓÐȨÌáǰɨ³ýÌõÔ¼£¬£¬£¬£¬£¬£¬£¬ÊÕ»Ø×âÁÞ·¿²ú£¬£¬£¬£¬£¬£¬£¬Í¬Ê±²»ÓèÍË»¹ÌõÔ¼ÂÄÔ¼°ü¹Ü½ð²¢×·¾¿ÒÒ·½µÄÎ¥Ô¼ÔðÈΡ£¡£¡£¡£¡£

×âÁÞ·¿²ú°´ÏÖ×´×âÁÞ£¬£¬£¬£¬£¬£¬£¬ÒÒ·½ÒÑÓÚǩԼǰʵµØÉó²éÇÒûÓÐÈκÎÒìÒé¡£¡£¡£¡£¡£

µÚ¶þÌõ  ×âÁÞÏÞÆÚ

1¡¢×âÁÞÏÞÆÚΪ 3 Äê,×Ô¼×·½ÓëÒÒ·½Ç©ÊðÌõÔ¼Ö®ÈÕ×îÏÈÅÌËã¡£¡£¡£¡£¡£

2¡¢ÈçÒÒ·½ÓÐÒâÔÚÌõÔ¼×âÁÞÆÚÂúºó£¬£¬£¬£¬£¬£¬£¬Ðø×â±¾ÌõÔ¼ÏîÏ·¿²ú£¬£¬£¬£¬£¬£¬£¬ÐëÔÚ±¾ÌõÔ¼×âÁÞÆÚ½ìÂúÌõ¼þǰ90ÈÕÊéÃæÏò¼×·½Ìá³öÐø×âÉêÇ룬£¬£¬£¬£¬£¬£¬ÔÚÒ»ÂÉÌõ¼þÏ£¬£¬£¬£¬£¬£¬£¬ÒÒ·½ÏíÓÐÓÅÏÈȨ£»£»£» £»£»£»£»ÒÒ·½Î´Ìáǰ90ÈÕÊéÃæÌá³öÉêÇ벢ǩÊðÐø×âÌõÔ¼µÄ£¬£¬£¬£¬£¬£¬£¬ÊÓΪÒÒ·½×Ô¶¯·ÅÆúÓÐÓÅÏÈȨ¡£¡£¡£¡£¡£

µÚÈýÌõ  »ù±¾×â½ð½ÉÄÉ·½·¨

 1¡¢³ýÌõÔ¼ÉÐÓÐÔ¼¶¨Í⣬£¬£¬£¬£¬£¬£¬ÒÒ·½ÓÚÿÔÂ10ÈÕ£¨Óö·¨¶¨½ÚãåÈÕ˳ÑÓ£©Ç°½«µ±Ô»ù±¾×â½ð×ã¶î»ãÈë¼×·½Ö¸¶¨Õ˺ÅÄÚ£¨¿ª»§µ¥Î»£ºÖ麣U8¹ú¼Ê¡¤(Öйú)ÓÐÏÞ¹«Ë¾¹ÙÍø¿Ú°¶½¨É迪·¢ÓÐÏÞ¹«Ë¾£»£»£» £»£»£»£»¿ª»§ÒøÐУºÖйúÒøÐÐÖ麣ºáÇÙ·ÖÐУ»£»£» £»£»£»£» Õ˺ţº7354 5774 4131£©¡£¡£¡£¡£¡£

±¾ÌõԼÿÔ»ù±¾×â½ð±ê׼ΪÈËÃñ±Ò´óд£º      Ôª/ƽ·½Ã×/Ô£¨Ð¡Ð´£º       Ôª/ƽ·½Ã×/Ô£©£¬£¬£¬£¬£¬£¬£¬»ù±¾×â½ð°´×âÁÞ·¿²úÐÞ½¨Ãæ»ýÅÌË㣬£¬£¬£¬£¬£¬£¬ÒÒ·½Ã¿ÔÂÐèÏò¼×·½Ö§¸¶µÄ»ù±¾×â½ðΪ£ºÈËÃñ±Ò      Ôª£¨Ð¡Ð´£º       Ôª£©¡£¡£¡£¡£¡£

2¡¢Ïà¹ØÓöȣºÒÒ·½×âÁÞʱ´ú±¬·¢µÄ³ý»ù±¾×â½ðÒÔÍâµÄÒ»ÇÐÓöȣ¨È磺ÎïÒµÖÎÀí·Ñ¡¢µçÊÓ·Ñ¡¢µç»°·Ñ¡¢ÍøÂç·Ñ¡¢À¬»ø´¦Öóͷ£·ÑµÈ£©£¬£¬£¬£¬£¬£¬£¬ÓÉÒÒ·½°´Ïà¹Øµ¥Î»ÒªÇóµÄ±ê×¼¡¢Ê±¼ä¡¢·½·¨Ö±½ÓÏòÓйص¥Î»½ÉÄÉ£¬£¬£¬£¬£¬£¬£¬Ë®µç·ÑÒÔÒÒ·½ÏÖʵ×âÁÞд×Ö¼äÐÞ½¨Ãæ»ýÕ¼³ö¾³±¨¹Ø±¨¼ìÂ¥ÐÞ½¨Ãæ»ýµÄ±ÈÀý·Ö̯ÏÖʵ±¬·¢µÄÓöȣ¬£¬£¬£¬£¬£¬£¬ÒÒ·½Ó¦ÓÚÿÔÂ10ºÅǰÏòµæ¸¶µ¥Î»(¼´¼×·½)Ö§¸¶ÉÏÔµÄË®µç·Ñ¡£¡£¡£¡£¡£ÈôÒÒ·½Î´×¼Ê±½É¸¶£¬£¬£¬£¬£¬£¬£¬Ã¿ÓâÆÚÒ»ÈÕ£¬£¬£¬£¬£¬£¬£¬ÒÒ·½Ó¦Ïò¼×·½Ö§¸¶Ç·¸¶Ë®µçÓöȽð¶î3%µÄÎ¥Ô¼½ð£»£»£» £»£»£»£»Ë®µç·ÑÓâÆÚ30Ì죨º¬µ±Ì죩»òÀÛ¼ÆÓâÆÚ30Ì죨º¬µ±Ì죩»òÀÛ¼ÆÇ·¸¶Ë®µç·Ñ½ð¶îÀۼƵִï1000Ôª£¨º¬±¾Êý£©£¬£¬£¬£¬£¬£¬£¬ÒÒ·½³ýÖ§¸¶Î¥Ô¼½ðÍ⣬£¬£¬£¬£¬£¬£¬¼×·½ÉÐÓÐȨЭÖúÓйص¥Î»½ÓÄÉͣˮ¡¢Í£µçµÈ²½·¥²¢/»òÌáǰɨ³ý±¾ÌõÔ¼£¬£¬£¬£¬£¬£¬£¬ÊÕ»Ø×âÁÞ·¿²ú£¬£¬£¬£¬£¬£¬£¬²¢²»ÍË»¹ÂÄÔ¼°ü¹Ü½ð£¬£¬£¬£¬£¬£¬£¬¹ØÓÚÒÒ·½ÔÚ×âÁÞʱ´úËù×÷µÄ×°ÐÞ£¬£¬£¬£¬£¬£¬£¬¼×·½²»×÷ÈκÎÅâ³¥£¬£¬£¬£¬£¬£¬£¬Í¬Ê±£¬£¬£¬£¬£¬£¬£¬ÒÒ·½Ó¦×ÔÐм縺һÇÐÔðÈμ°Ëðʧ¡£¡£¡£¡£¡£

3¡¢ÂÄÔ¼°ü¹Ü½ð£ºÎª°ü¹Ü±¾ÌõÔ¼ÖÜÈ«ÍÆÐУ¬£¬£¬£¬£¬£¬£¬ÒÒ·½ÐëÓÚÌõԼǩÊðÖ®ÈÕÆð10ÈÕÄÚÏò¼×·½Ò»´ÎÐÔ½»ÄÉ×âÁÞ·¿²úÊ×¶þ¸öÔµĻù±¾×â½ð£¬£¬£¬£¬£¬£¬£¬Í¬Ê±£¬£¬£¬£¬£¬£¬£¬ÐëÁí½»ÄÉÒ»¸öÔ»ù±¾×â½ðÈËÃñ±Ò_______ÔªÕû£¨Ð¡Ð´£º       Ôª£©×÷ΪÂÄÔ¼°ü¹Ü½ð£¬£¬£¬£¬£¬£¬£¬´ÓµÚ3ÔÂÆðÒÒ·½°´Ô½»ÄÉ×â½ð£¬£¬£¬£¬£¬£¬£¬½»ÄÉÈÕÆÚΪÿ¸öÔÂ10ÈÕǰ¡£¡£¡£¡£¡£ÌõÔ¼ÆÚÂú»òɨ³ýºó£¬£¬£¬£¬£¬£¬£¬ÈçÒÒ·½×¼Ê±½ÉÇå±¾ÌõËùÊö¸÷ÏîÓöÈÇÒÎÞÎ¥Ô¼ÐÐΪ£¬£¬£¬£¬£¬£¬£¬¼×·½ÔÚÓÚºâÓî¼°Ë®µç¡¢Í¨Ñ¶µÈÉèÊ©ÇåµãÑéÊÕÎÞÎó²¢ÎüÊÕ×âÁÞ·¿²úÖ®ÈÕÆð7¸öÊÂÇéÈÕÄÚÆ¾Ïà¹Ø·¢Æ±»òÊÕÌõ½«ÂÄÔ¼°ü¹Ü½ðÒ»´ÎÐÔÎÞϢȫ¶îÍË»¹ÒÒ·½¡£¡£¡£¡£¡£

µÚËÄÌõ  ºâÓî×âÁÞʱ´úºâÓîµÄÐÞÉɼ°×°±¸µÄάÐÞ

¼×ÒÒË«·½È·Èϰ´¡°Ë­Ê¹ÓÃ˭ά»¤¡±µÄÔ­Ôò£¬£¬£¬£¬£¬£¬£¬ÒÒ·½¶Ô×âÁÞ·¿²úµÄÇ½Ãæ¡¢Ë®¡¢µçµÈÉèÊ©¼°ÆäËû×°±¸Ðë°´ÆÚά»¤±£Ñø£¬£¬£¬£¬£¬£¬£¬¼á³ÖÓÅÒì¡¢Õý³£µÄʹÓÃ״̬£¬£¬£¬£¬£¬£¬£¬¶Ô³Ð×âʱ´ú·¢Ã÷µÄȱÏݾÙÐÐÐëÒªµÄάÐÞ£¬£¬£¬£¬£¬£¬£¬Î¬ÐÞÓöÈÓÉÒÒ·½¼ç¸º¡£¡£¡£¡£¡£

µÚÎåÌõ  ¼×·½ÓëÒÒ·½Ö÷Ìå±ä»»µÄ´¦Öóͷ£

    1¡¢¼×·½ÔÚ³öÈÃ×âÁÞ·¿²úËùÓÐȨʱ£¬£¬£¬£¬£¬£¬£¬Ó¦Ìáǰ30ÌìÊéÃæÍ¨ÖªÒÒ·½¡£¡£¡£¡£¡£

  2¡¢×âÁÞʱ´ú£¬£¬£¬£¬£¬£¬£¬¼×·½È罫¸ÃºâÓîËùÓÐÈ¨×ªÒÆ¸øµÚÈý·½£¨Ò»ÂÉÌõ¼þÏ£¬£¬£¬£¬£¬£¬£¬ÒÒ·½·ÅÆúÓÅÏȹºÖÃȨµÄ£©£¬£¬£¬£¬£¬£¬£¬ÔÚÎȹ̻»±¾ÌõÔ¼ÄÚÈݵÄÌõ¼þÏ£¬£¬£¬£¬£¬£¬£¬²»±ØÕ÷µÃÒÒ·½Ô޳ɣ¬£¬£¬£¬£¬£¬£¬µ«Ó¦¼û¸æÒÒ·½ËùÓÐÈ¨×ªÒÆÇéÐΣ¬£¬£¬£¬£¬£¬£¬²¢ÓÉËùÓÐȨȡµÃÆ«ÏòÒÒ·½³ö¾ßÈ·ÈÏÊ飬£¬£¬£¬£¬£¬£¬ÔÞ³ÉÎÞÌõ¼þ³Ð½Ó±¾ÌõÔ¼Ô¼¶¨Ó¦Óɼ׷½¼ç¸ºµÄÒåÎñ¡£¡£¡£¡£¡£ËùÓÐÈ¨×ªÒÆºó£¬£¬£¬£¬£¬£¬£¬ËùÓÐȨȡµÃ·½¼´³ÉΪ±¾ÌõÔ¼µÄËäÈ»³ö×â·½£¬£¬£¬£¬£¬£¬£¬ÏíÓÐÔ­¼×·½ÏíÓеÄȨÁ¦ºÍ¼ç¸ºÔ­¼×·½µÄÒåÎñ¡£¡£¡£¡£¡£

3¡¢ÒÒ·½ÔÚ×âÁÞÆÚÄÚ£¬£¬£¬£¬£¬£¬£¬²»µÃÎÞ¹ÊÍË×â»òδ¾­¼×·½µÄÊéÃæÔÞ³É×ÔÐн«×âÁÞ·¿²ú·Ö×â»òת×â¸øµÚÈý·½£¬£¬£¬£¬£¬£¬£¬²»È»£¬£¬£¬£¬£¬£¬£¬¼×·½ÓÐȨÌáǰɨ³ýÌõÔ¼£¬£¬£¬£¬£¬£¬£¬²¢Ã»ÊÕÂÄÔ¼°ü¹Ü½ð¼°×·¾¿ÒÒ·½µÄÎ¥Ô¼ÔðÈΡ£¡£¡£¡£¡£

µÚÁùÌõ  Ë«·½ÔðÈÎ

    £¨Ò»£©¼×·½ÔðÈÎ

    1¡¢¼×·½ÓÚÇ©ÊðÌõÔ¼Ö®ÈÕÆð10¸öÈÕÀúÌìÄÚÏòÒÒ·½Òƽ»×âÁÞ·¿²ú£¬£¬£¬£¬£¬£¬£¬Î´°´ÌõÔ¼»®×¼Ê±¼äÌṩ×âÁÞ·¿²úʱ£¬£¬£¬£¬£¬£¬£¬×âÁÞÏÞÆÚ²»Ë³ÑÓ£¬£¬£¬£¬£¬£¬£¬ÒÒ·½¿É½«»ù±¾×â½ðµÈÓöÈ˳ÑÓÖÁ¼×·½Òƽ»Ô¿³×Ö®ÈÕÆð½ÉÄÉ¡£¡£¡£¡£¡£

2¡¢ÌõÔ¼ÆÚÂú»òɨ³ýºó£¬£¬£¬£¬£¬£¬£¬ÈçÒÒ·½ÎÞÎ¥Ô¼ÐÐΪÇÒʵʱ½áÇå×â½ðÆ·¼¶ÈýÌõÔ¼¶¨µÄËùÓÐÓöȣ¬£¬£¬£¬£¬£¬£¬¼×·½ÔÚ¶Ô×âÁÞ·¿²ú¼°Ë®µç¡¢Í¨Ñ¶µÈÉèÊ©ÇåµãÑéÊÕÎÞÎó²¢ÎüÊÕ×âÁÞ·¿²úÖ®ÈÕÆð7¸öÊÂÇéÈÕÄÚÆ¾Ïà¹Ø·¢Æ±»òÊÕÌõ½«ÂÄÔ¼°ü¹Ü½ðÒ»´ÎÐÔÎÞÏ¢ÍË»¹ÒÒ·½¡£¡£¡£¡£¡£

3¡¢×âÁÞʱ´ú¼×·½ÓÐȨ¶ÔÒÒ·½µÄı»®Ô˶¯¾ÙÐмàÊÓ£¬£¬£¬£¬£¬£¬£¬µ«²»¸ÉÔ¤ÒÒ·½ÔÚÌõÔ¼Ô¼¶¨Ä±»®¹æÄ£ÄÚµÄÕýµ±Ä±»®Ô˶¯¡£¡£¡£¡£¡£

4¡¢×âÁÞ·¿²ú½»¸¶ÇéÐÎΪ¼ò×°ÐÞ½»¸¶£¬£¬£¬£¬£¬£¬£¬ÆäÖаüÀ¨£ºÇ½Éí¡¢µØ°å¡¢Ì컨¼°µç·µÈ¡£¡£¡£¡£¡£

£¨¶þ£©ÒÒ·½ÔðÈÎ

1¡¢ÒÒ·½±ØÐèÄÜ×ÔÁ¦¼ç¸ºÃñÊÂÔðÈΣ¬£¬£¬£¬£¬£¬£¬ÒÒ·½ÐëΪÆóÒµ£¬£¬£¬£¬£¬£¬£¬²¢ÐëÌṩÒÔÏÂÎļþ£º

1£© ÆóÒµ·¨ÈËÉí·Ý֤ʵ£»£»£» £»£»£»£»

2£© ·¨ÈËÊÚȨίÍÐÊé¼°ÊÚȨÈËÉí·Ý֤ʵ£»£»£» £»£»£»£»

3£© Æóҵı»®Ö´ÕÕ¸´Ó¡¼þ²¢¾ß±¸±¨¹Ø±¨¼ìÀàӪҵı»®×ÊÖÊ£»£»£» £»£»£»£»

2¡¢×¼Ê±½»ÄÉ»ù±¾×â½ð¡£¡£¡£¡£¡£ÓâÆÚ½ÉÄɵ쬣¬£¬£¬£¬£¬£¬Æ¾Ö¤ËùÇ·½ð¶î£¬£¬£¬£¬£¬£¬£¬°´ÖðÈÕ1 %µÄ±ê×¼Ïò¼×·½Ö§¸¶ÖÍÄɽ𡣡£¡£¡£¡£ÒÒ·½Ò»Á¬Áè¼ÝÁ½¸öÔ²»½ÉÄÉ»òÇ··Ñ½ð¶î×ܼƵִïÁ½¸öÔµĻù±¾×â½ð»òÀÛ¼Æ3¸öÔÂδ׼ʱ×ã¶î½ÉÄÉ»ù±¾×â½ð£¬£¬£¬£¬£¬£¬£¬¼×·½ÓÐȨÌáǰɨ³ýÌõÔ¼£¬£¬£¬£¬£¬£¬£¬ÊÕ»Ø×âÁÞ·¿²ú£¬£¬£¬£¬£¬£¬£¬²¢²»ÍË»¹ÂÄÔ¼°ü¹Ü½ð²¢×·¾¿ÒÒ·½µÄÎ¥Ô¼ÔðÈΣ»£»£» £»£»£»£»¹ØÓÚÒÒ·½ÔÚ×âÁÞʱ´úËù×÷µÄ×°ÐÞ£¬£¬£¬£¬£¬£¬£¬¼×·½²»×÷ÈκÎÅâ³¥¡£¡£¡£¡£¡£

3¡¢ÈçÒòÒÒ·½Ôµ¹ÊÔ­ÓÉδʵʱ½ÉÄÉË®µç·Ñ¡¢ÎïÒµÖÎÀí·ÑµÈÏà¹ØÓöÈÔì³É¼×·½µÄËðʧ£¬£¬£¬£¬£¬£¬£¬ÓÉÒÒ·½È«È¨ÈÏÕæ¡£¡£¡£¡£¡£

4¡¢Î´¾­¼×·½ÊéÃæÔ޳ɣ¬£¬£¬£¬£¬£¬£¬ÒÒ·½²»µÃ˽×ÔÔÚ×âÁÞ·¿²úÍâǽ¾ÙÐÐ×°ÊΡ¢¸ü¸ÄºâÓî½á¹¹¡¢¼Ó½¨¡¢´î½¨ÈκÎÐÞ½¨£¬£¬£¬£¬£¬£¬£¬²»È»Óɴ˶øÔì³ÉµÄÖ´·¨ÔðÈκ;­¼ÃËðʧÓÉÒÒ·½¼ç¸º£¬£¬£¬£¬£¬£¬£¬¼×·½ÓÐȨÌáǰɨ³ýÌõÔ¼£¬£¬£¬£¬£¬£¬£¬²¢²»ÍË»¹ÂÄÔ¼°ü¹Ü½ðÇÒÓÐȨ׷¾¿ÒÒ·½µÄÎ¥Ô¼ÔðÈΡ£¡£¡£¡£¡£

5¡¢ÒÒ·½Ó¦Ìý´ÓÍâµØÓйØÖÎÀí²¿·ÖµÄÖÎÀí£¬£¬£¬£¬£¬£¬£¬×Ô¾õ×ñÊØÓйØÖ´·¨¡¢¹æÔò£¬£¬£¬£¬£¬£¬£¬²»µÃ¾ÙÐÐÎ¥·¨¡¢Î¥¹æÔ˶¯¡£¡£¡£¡£¡£²»È»£¬£¬£¬£¬£¬£¬£¬¼×·½ÓÐȨÌáǰɨ³ýÌõÔ¼£¬£¬£¬£¬£¬£¬£¬Êջسö×âºâÓ£¬£¬£¬£¬£¬£¬²¢²»ÍË»¹ÂÄÔ¼°ü¹Ü½ð¡£¡£¡£¡£¡£¹ØÓÚÒÒ·½ÔÚ×âÁÞʱ´úËù×÷µÄ×°ÐÞ£¬£¬£¬£¬£¬£¬£¬¼×·½²»×÷ÈκÎÅâ³¥£»£»£» £»£»£»£»ÒÒ·½¼ç¸ºÒò´Ë±¬·¢µÄÒ»ÇÐÖ´·¨ÔðÈΡ£¡£¡£¡£¡£

6¡¢ÒÒ·½²»µÃÔÚ×âÁÞ·¿²úÄÚ²»·¨´æ·ÅÒ×ȼ¡¢Ò×±¬¡¢·ÅÉäÐÔµÈÓÐÎÛȾ»òÓж¾µÈΣÏÕÎïÆ·£¬£¬£¬£¬£¬£¬£¬¼ç¸º¶Ô×âÁÞ·¿²úµÄÇå¾²¡¢·À»ð¡¢ÎÀÉú£¨ÃÅǰÈý°ü£©ÔðÈΣ¬£¬£¬£¬£¬£¬£¬²¢°´ÆÚ¼ì²éºÍɨ³ýÒ»ÇÐÏû·ÀÇå¾²Òþ»¼£¬£¬£¬£¬£¬£¬£¬ÒòÒÒ·½Ôµ¹ÊÔ­ÓÉÒýÆð»ðÔÖ»òÆäËûʹʶøµ¼ÖµÄËùÓÐËðʧ¾ùÓÉÒÒ·½¼ç¸º¡£¡£¡£¡£¡£¼×·½ÓÐȨÌáǰɨ³ýÌõÔ¼£¬£¬£¬£¬£¬£¬£¬Êջسö×âºâÓ£¬£¬£¬£¬£¬£¬²¢²»ÍË»¹ÂÄÔ¼°ü¹Ü½ð¡£¡£¡£¡£¡£¸ø¼×·½Ôì³ÉËðʧµÄ£¬£¬£¬£¬£¬£¬£¬ÒÒ·½Ó¦µ±ÌṩÅâ³¥¡£¡£¡£¡£¡£ÒÒ·½ÈÏÕæÈËΪ×âÁÞ·¿²úµÄÏû·ÀÔðÈÎÈË¡£¡£¡£¡£¡£

    7¡¢¾´ÖغÍÕý³£Ê¹ÓúâÓî¼°ºâÓîÄÚÒ»ÇеçÆ÷µÈ×°±¸¡£¡£¡£¡£¡£ÒòÒÒ·½Ê¹ÓÃÔì³ÉºâÓî¡¢×°±¸µÈË𻵵쬣¬£¬£¬£¬£¬£¬ÒÒ·½±ØÐèÈÏÕæÐÞ¸´»òÅâ³¥¡£¡£¡£¡£¡£ÈçÒÒ·½ÐèÒªÔÚ×âÁÞ·¿²úÄÚ×°ÖÃÁè¼ÝÏÖÓÐË®µç¸ººÉÈÝÁ¿µÄ×°±¸¡¢ÉèÊ©£¬£¬£¬£¬£¬£¬£¬±ØÐè»ñµÃ¼×·½ÊéÃæÔ޳ɣ¬£¬£¬£¬£¬£¬£¬ÓöÈÓÉÒÒ·½×ÔÀí¡£¡£¡£¡£¡£Î´¾­¼×·½ÊéÃæÔ޳ɺÍδÖÎÀíÏà¹ØÊÖÐø¶ø±¬·¢µÄʹʻò´¦·Ö£¬£¬£¬£¬£¬£¬£¬ÓÉÒÒ·½¼ç¸ºËùÓÐÔðÈΡ£¡£¡£¡£¡£Í¬Ê±£¬£¬£¬£¬£¬£¬£¬¼×·½ÓÐȨÌáǰɨ³ýÌõÔ¼£¬£¬£¬£¬£¬£¬£¬Êջسö×âºâÓ£¬£¬£¬£¬£¬£¬²¢²»ÍË»¹ÂÄÔ¼°ü¹Ü½ð¼°×·¾¿ÒÒ·½µÄÎ¥Ô¼ÔðÈΡ£¡£¡£¡£¡£

8¡¢±¾ÌõÔ¼ÆÚÂú£¨ÒÒ·½²»ÔÙÐø×⣩»òÌáǰɨ³ýʱ£¬£¬£¬£¬£¬£¬£¬Èëǽ¼Ò‚h¡¢×è¶ô¡¢Ì컨¡¢µØÃæµÈÀο¿×°ÊÎÎÞ³¥Òƽ»¸ø¼×·½£»£»£» £»£»£»£»ÒÒ·½×ÔÐÐÌíÖõĿÉÒÆ¶¯µÄ×°±¸µÈÎïÆ·ÊôÒÒ·½ËùÓС£¡£¡£¡£¡£ÈçÒÒ·½ÔÚ×âÁÞÆÚÂúʱ²»ÔÙÐøÔ¼»òÌõÔ¼Ìáǰɨ³ý£¬£¬£¬£¬£¬£¬£¬ÒÒ·½Ó¦ÔÚ×âÁÞÆÚ½ìÂúÖ®ÈÕÆð5ÈÕÄÚ»òÌõԼɨ³ýÖ®ÈÕÆð5ÈÕÄÚ°áÀë³Ð×âºâÓî²¢ÒÆ½»¼×·½£¬£¬£¬£¬£¬£¬£¬ÓâÆÚ²»°á³öµÄ£¬£¬£¬£¬£¬£¬£¬ÊÓΪÒÒ·½·ÅÆúÎïÆ·ËùÓÐȨ£¬£¬£¬£¬£¬£¬£¬¹é¼×·½ËùÓУ¬£¬£¬£¬£¬£¬£¬¼×·½ÓÐȨ¶ÔÆä¾ÙÐд¦Öóͷ££»£»£» £»£»£»£»ÒÒ·½Ó¦¼á³ÖÎÝÄÚµçÆ÷µÈ×°±¸ÍêºÃ²¢°´½»¸¶Ê¹ÓÃʱµÄÇå½à״̬ºÍʹÓÃ״̬ËÍ»¹¸ø¼×·½£¬£¬£¬£¬£¬£¬£¬ÈôÓÐË𻵣¬£¬£¬£¬£¬£¬£¬¼×·½ÓÐȨ°´Ëð»µË®Æ½ÒªÇóÒÒ·½¼Æ¼ÛÅâ³¥¡£¡£¡£¡£¡£

9¡¢Î´¾­¼×·½ÊéÃæÔ޳ɣ¬£¬£¬£¬£¬£¬£¬ÒÒ·½²»µÃ½«×âÁÞ·¿²ú·Ö×â»òת×âËûÈË»ò¸Ä±ä×âÁÞÓÃ;£¬£¬£¬£¬£¬£¬£¬ÈçÒÒ·½Î¥·´£¬£¬£¬£¬£¬£¬£¬¼×·½¶ÔÒÒ·½µÄǰÊöÐÐΪ²»ÓèÈϿɣ¬£¬£¬£¬£¬£¬£¬ÓÐȨÌáǰɨ³ýÌõÔ¼£¬£¬£¬£¬£¬£¬£¬²»ÓèÍË»¹ÒÒ·½Ëù½»ÄɵÄÂÄÔ¼°ü¹Ü½ð²¢×·¾¿ÆäÎ¥Ô¼ÔðÈΡ£¡£¡£¡£¡£

10¡¢ÔÚ×âÁÞÆÚÄÚ£¬£¬£¬£¬£¬£¬£¬ÈçÒÒ·½È·ÒòÌØÊâÇéÐÎÐèÒªÌáǰÍË×⣬£¬£¬£¬£¬£¬£¬±ØÐèÌáǰ30ÈÕÊéÃæÍ¨Öª¼×·½²¢¾­¼×·½ÔÞ³ÉÇÒÖÎÀíÌáǰɨ³ýÌõÔ¼ºÍÍ˳¡Çåµã½»½ÓÊÖÐø£¬£¬£¬£¬£¬£¬£¬²»È»ÊÓÒÒ·½Î¥Ô¼£¬£¬£¬£¬£¬£¬£¬¼×·½ÓÐȨɨ³ý±¾ÌõÔ¼£¬£¬£¬£¬£¬£¬£¬ÇÒÒÒ·½Ëù½»ÄɵÄÂÄÔ¼°ü¹Ü½ð²»ÓèÍË»¹²¢×·¾¿ÒÒ·½µÄÎ¥Ô¼ÔðÈΡ£¡£¡£¡£¡£

11¡¢ÒÒ·½ÎÞÂÛÊÇÌáǰÕÕ¾É׼ʱÍË×âµÄ£¬£¬£¬£¬£¬£¬£¬¶¼Ó¦Ïò¼×·½Ìá½»ÍË×âÇåµ¥£¬£¬£¬£¬£¬£¬£¬ÁÐÃ÷ÍË×âʱ³Ð×âÎïÒµµÄ״̬¼°ÐèÒª½»½ÓÇåµãÑéÊÕÎïÆ·µÄÊýÄ¿£¬£¬£¬£¬£¬£¬£¬¼×·½´ú±íÑéÊÕÇåµãÎÞÎóºóÇ©×ÖÈ·ÈÏ·½ÊÓΪÒÒ·½ÍÆÐÐÍê±Ï½»»¹×âÁÞ±êµÄÎïµÄÒåÎñ¡£¡£¡£¡£¡£

12¡¢ÒÒ·½Ó¦µ±×ã¶îÖ§¸¶Æä¹ÍÇëµÄ¹ÍÔ±»òÀͶ¯ÕßµÄÈËΪ£¬£¬£¬£¬£¬£¬£¬ÒòÒÒ·½Ç·Ð½µ¼Ö¼׷½ËðʧµÄ£¬£¬£¬£¬£¬£¬£¬¼×·½ÓÐȨ¿Û³ýÒÒ·½µÄÂÄÔ¼°ü¹Ü½ð×÷Ϊ¶Ô¼×·½µÄÅâ³¥£¬£¬£¬£¬£¬£¬£¬È±·¦²¿·Ö¿ÉÒÔÏòÒÒ·½×·³¥¡£¡£¡£¡£¡£

µÚÆßÌõ  ÃâÔðÌõ¿î

 ±¬·¢ÊôÓÚÏÖÐÐÖ´·¨ÈϿɹæÄ£ÄÚµÄÕ½Õù¡¢×ÔÈ»ÔÖÄѼ°¹ú¼ÒÖ´·¨¡¢¹æÔòµÄת±äµÈ²»¿É¿¹Á¦£¬£¬£¬£¬£¬£¬£¬»ò¼×·½Éϼ¶²¿·ÖÖ¸ÁîµÈÇéÐÎÖÂʹÌõÔ¼²»¿É¼ÌÐøÍÆÐе쬣¬£¬£¬£¬£¬£¬Ë«·½»¥²»¼ç¸ºÎ¥Ô¼ÔðÈΡ£¡£¡£¡£¡£ÈκÎÒ»·½¶¼Ó¦ÊµÊ±½«ÃâÔðÊÂÓÉÊéÃæÍ¨Öª¶Ô·½²¢ÌṩÏà¹ØÖ¤¾Ý¡£¡£¡£¡£¡£ÌõÔ¼ÖÕÖ¹ÍÆÐк󣬣¬£¬£¬£¬£¬£¬¼×Æ«ÏòÒÒ·½Ò»´ÎÐÔÎÞÏ¢ÍË»¹ÂÄÔ¼°ü¹Ü½ð£¬£¬£¬£¬£¬£¬£¬¼×·½Æ¾Ö¤ÒÒ·½ÏÖʵʹÓÃʱ¼äÊÕÈ¡×â½ð¼°Ïà¹ØÓöȣ¬£¬£¬£¬£¬£¬£¬ÒÒ·½Í¶ÈëµÄÀο¿×°ÐÞ²»ÓèÅâ³¥¡£¡£¡£¡£¡£

µÚ°ËÌõ  ÆäËüÔ¼¶¨ÊÂÏî

1¡¢±¾ÌõԼдÃ÷µÄÁªÏµÈË¡¢µØµã¡¢µç»°µÈÐÅϢΪ˫ÆÓֱʽÁªÏµ·½·¨£¬£¬£¬£¬£¬£¬£¬¹ØÓÚÌõÔ¼ÍÆÐÐÖÐÐèҪת´ïµÄÐÅÏ¢¾ùƾ֤ÒÔÉÏÈ·¶¨·½·¨ÁªÂ磬£¬£¬£¬£¬£¬£¬È籬·¢±ä»»£¬£¬£¬£¬£¬£¬£¬±ä»»·½Ó¦ÊµÊ±ÊéÃæ¼û¸æ¶Ô·½£»£»£» £»£»£»£»²»È»Ôì³ÉÐÅÏ¢²»³©Ëù±¬·¢µÄËðʧÓɹý´í·½¼ç¸º¡£¡£¡£¡£¡£

2¡¢Ë«·½ÔÚ±¾ÌõÔ¼Ö´ÐÐÀú³ÌÖÐÈ籬·¢ÕùÒ飬£¬£¬£¬£¬£¬£¬Ó¦±¾×ÅÓѺÃÏàÖúµÄÔ­ÔòЭÉ̽â¾ö£»£»£» £»£»£»£»ÈçЭÉ̲»¿É½â¾öʱ£¬£¬£¬£¬£¬£¬£¬Ë«·½ÔÞ³Éͨ¹ý×âÁÞ·¿²úËùÔÚµØÈËÃñ·¨ÔºËßËϽâ¾ö¡£¡£¡£¡£¡£

3¡¢±¾ÌõԼδ¾¡ÊÂÒË£¬£¬£¬£¬£¬£¬£¬Óɼ×ÒÒË«·½ÁíÐÐЭÉÌÇ©ÊðЭÒ飬£¬£¬£¬£¬£¬£¬²¢×÷Ϊ±¾ÌõÔ¼µÄÔö²¹Ð­Òé¡£¡£¡£¡£¡£

4¡¢±¾ÌõԼһʽʰ·Ý£¬£¬£¬£¬£¬£¬£¬¼×·½Ö´Õý±¾Ò¼·Ý£¬£¬£¬£¬£¬£¬£¬¸±±¾Â½·Ý£»£»£» £»£»£»£»ÒÒ·½Ö´Õý±¾Ò¼·Ý£¬£¬£¬£¬£¬£¬£¬¸±±¾·¡·Ý£¬£¬£¬£¬£¬£¬£¬¾ßÓÐÒ»ÂÉÖ´·¨Ð§Á¦¡£¡£¡£¡£¡£ÌõÔ¼Õý±¾Ó븱±¾¾ßÓÐÒ»ÂÉÖ´·¨Ð§Á¦£¬£¬£¬£¬£¬£¬£¬µ«µ±ÌõÔ¼Õý±¾Ó븱±¾·×ÆçÖÂʱ£¬£¬£¬£¬£¬£¬£¬ÒÔÌõÔ¼Õý±¾Îª×¼¡£¡£¡£¡£¡£

5¡¢±¾ÌõÔ¼×Ô¼×ÒÒ˫ҪÁ춨´ú±íÈË»òÊÚȨ´ú±íÈËÇ©×ÖÇÒ¸ÇÕÂÖ®ÈÕÆðÉúЧ¡£¡£¡£¡£¡£

 

 

 

 

 

 

£¨ÒÔÏÂÎÞÕýÎÄ£¬£¬£¬£¬£¬£¬£¬½öΪǩ×Ö¸ÇÕ²¿·Ö£©

¼×·½£º                               ÒÒ·½£º

Ö麣U8¹ú¼Ê¡¤(Öйú)ÓÐÏÞ¹«Ë¾¹ÙÍø¿Ú°¶½¨É迪·¢ÓÐÏÞ¹«Ë¾

·¨¶¨´ú±íÈË                           ·¨¶¨´ú±íÈË

£¨»òÊÚȨ´ú±íÈË£©£º                    (»òÊÚȨ´ú±íÈË)£º

ÁªÏµµØµã£º                           ÁªÏµµØµã£º

Ö麣ÊкáÇÙÐÂÇø¾°Ë³Â·

£¨ºáÇÙÐÂÇøÍýÏëչʾÌüÅÔ£©

ÓÊÕþ±àÂ룺519000                     ÓÊÕþ±àÂ룺

ÁªÏµµç»°£º0756-6313918               ÁªÏµµç»°£º

´«Õæµç»°£º0756-6313900               ´«Õæµç»°£º

   Äê  Ô  ÈÕǩԼÓÚÖ麣                Äê  Ô  ÈÕǩԼÓÚÖ麣


ºáÇÙ¿Ú°¶¹ý¶ÉÆÚͨ¹ØÉèÊ©ÏîÄ¿³ö¾³±¨¹Ø±¨¼ìÂ¥Èý²ãд×ּ侺¼ÛÔ¼Ç뺯

ºáÇÙ¿Ú°¶¹ý¶ÉÆÚͨ¹ØÉèÊ©ÏîÄ¿³ö¾³±¨¹Ø±¨¼ìÂ¥Èý²ãд×Ö¼äÆ½ÃæÍ¼

ºáÇÙ¿Ú°¶¹ý¶ÉÆÚÉèÊ©³ö¾³±¨¹Ø±¨¼ìÂ¥½á¹¹Í¼

 

¡¾ÍøÕ¾µØÍ¼¡¿¡¾sitemap¡¿